


デザインだけではない!
他社とは違う「設計」をパルスタイルで。
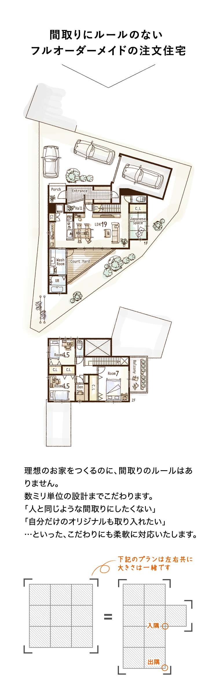
本当のフルオーダーとは専属の設計士との家づくりのこと。
変形地であったとしても、
土地を効率的に使ったプランをご提案いたします。
カタチで金額が変わらないのが
本当の自由設計・注文住宅です。




パルスタイルの「唯一無二のオリジナリティ」を追求します。
お客様の想いや個性溢れるライフスタイルを反映させた納得の住宅。
注文住宅でこそ実現できる、設計・建築デザインへのこだわり。
オンリーワンを目指して最高のお家を提供いたします。
~ 北欧の香りに包まれるお家 ~

~ Out Door Living House ~





見えないひと手間を大切にした家づくりを。
間取りや素材、インテリアへのこだわりだけでなく、お洒落に快適に過ごしていただくために、動線やあえて見せない工夫を凝らしている場所などパルスタイルならではのデザインルールを適用しております。
約250項目の設計・施工ルールの内6つのデザインルールをご紹介。


一組のご家族に対して、1人の実務経験豊富な建築デザイナーが対応する担当制。ライフプランや夢などのヒアリングに始まり、プラン作成、コストコントロール、地鎮祭から着工・引渡しまでの工程管理にいたるまで責任を持って対応いたします。
プラン作成の回数には制限なく、納得のいくプランができるまで、何度でも無料で変更可能です。


パルスタイルの注文住宅は
「安心」・「快適」に暮らすための
仕様・設備が標準でフル装備!!


「現場発泡断熱材」は、住宅の屋根から
基礎まで家全体を丸ごと包み込み、
現場で発泡させて吹き付ける断熱材です。
また、自己接着力によって躯体との間に
隙間ができにくく、
長期間にわたって
優れた機密性・断熱性を発揮します。


細やかな連続気泡構造は
高い機密性により外部の騒音や
音の漏れを軽減し、
生活音に気兼ねすることなく、
快適に生活することが出来ます。
高い気密・断熱性をもつ住宅は
省エネルギー効果が高く、
建物の冷暖房に要する光熱費を
削減します。


※15年保証は凝集破壊、白化が対象です。













一般的に住宅設備機器のメーカー保証は1年のケースが大半で、保証期間終了後に故障が発生してしまった場合、修理費用はお客様の負担となります。
「あんしん修理サポート」なら、サポート期間中の修理費用の負担もなく、長期間安心して製品をご利用いただけます。

